エムズ日記をお読みの皆さま、寒波から一転、暖かい日になったり、待望の雨が降ったりと天候は春に向けて変化していますが、いかがお過ごしでしょうか。今回のエムズ日記は非常勤スタッフの鈴木が、丸福町家の建具についてお話しようと思います。
丸福町家は祖母から受け継いだ香川県丸亀市に建つ築98年になる家で、性能向上改修を行った後、約一年生活をしてきました。
(丸福町家の写真はこちらの作品事例のページをご覧ください。ページの一番下の「Report」より、改修前の詳細調査から工事完成後の様子まで、シリーズでお読みいただけます)
今回 このテーマを選定したのは、昨年末から新しい仕事として、建具表という図面を描く機会があり、改めて丸福町家の図面を確認しながら、建具の大切さを感じているためです。
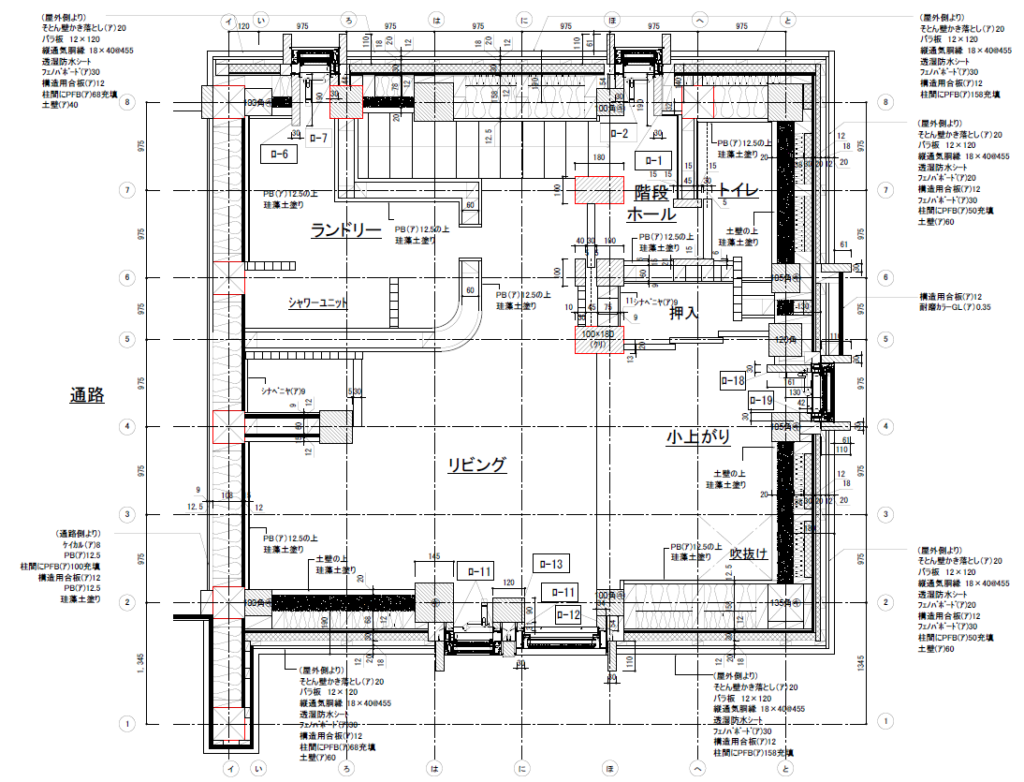
建具表とはこのような図面です。建物で使用する建具を一覧表に纏めています。


丸福町家では、外壁廻りの建具は、主にアルミ樹脂複合サッシを採用し、屋内の建具は木製建具で納めました。外壁廻りをアルミ樹脂複合サッシにしたのは、建設地が準防火地域内のため防火性能が必要であったことからです。サッシ本体はLIXIL社製のサーモスFG-Hを採用し、ガラスはアルゴンガスを封入した複層で日射を室内へ取り込む仕様のLow-Eガラスとしました。
写真は2階リビングのアルミ樹脂複合サッシのサッシです。

このサッシの特長は工業製品で品質が安定しており、期待する断熱性能、気密性能も数値で表され、コストも抑えられることです。
(水平枠詳細図)

(縦 枠詳細図)

エムズではこのような枠詳細図を作成して、サッシを外壁に固定する位置や下地材、サッシ廻りの枠材の配置を現場へ伝えます。屋外、屋内のサッシの色の選定は慎重に行い、木の枠材と樹脂のサッシの取合いが自然に馴染むように配慮しています。

外壁廻りで唯一、玄関の出入り口だけは、木製建具にしました。これはこの建物において、住まい手や来訪者が毎日手に取る大切な建具だからです。玄関の建具は引戸とし、框組にペアガラスを入れた引戸を屋内側に設け、その外側に縦格子の網戸引戸、最も外側には建具の両面に石膏ボードを張り、その表面に鋼鈑を張りつけた防火引戸を配置しました。防火戸の見付寸法(建具の厚さ)は、50mmとなりました。



3枚の引戸は土間に仕込んだステンレスのレールの上を戸車に乗って開閉します。重量のある防火戸と玄関引戸はゴロゴロと重厚な音と握り棒から手に伝わる重さを感じながら開閉します。縦格子の網戸引戸は軽快に滑るように開閉します。

私はこの玄関の建具が最も気に入っています。木目の温かさや握り棒を掴んだ時の質感は、木製建具ならではと思います。また開閉が不調になった時には、建具を外して戸車の調整で治せるところも確認し、感動しました。

屋内はいろいろな箇所で木製建具を使用しています。

階段ホールに面する建具は頻繁な開閉の操作性を考慮して上吊りとしました。そのため敷居が無く、つまずきも防止できます。

押入の建具は、小上りからの布団の上げ下ろしの動作を考慮して左側の建具を手前にしました。


リビングに面する右手のワードローブの建具は、祖母が1階の和室で使っていた障子を転用しました。左手の地袋の建具は厚さ6ミリのシナベニヤで作りました。



地袋の建具は厚さ6ミリのシナベニヤとしアルミガラスレールに堅木を入れた敷居で軽快に開閉ができます。

階段下収納の建具は唯一、引戸ではなく開き戸にしました。


現場では、建具を納める枠の施工は大工職が行います。エムズでは枠の納め方を説明するために枠詳細図を描きます。

施工をしてもらった関元工務店の能見さんからは、枠詳細図があってとても工事がしやすかった、と感想をもらいました。このような図面がない場合は、自分たちで納まりを考えながら施工を行うが、どうしても工事がやり易い方へと流れてしまいがちになるそうです。設計者から明確に材料同士の勝ち負けや納めかたを指示してもらった方が、それに向けて施工をしていくので迷いもなく進められるそうです。
木製建具本体の製作は建具職となります。建具の製作に先立ち、エムズでは建具表を基に現場で建具職と最終的な仕様の打合せを行います。この打合せで、現場の仕上りの状況や建具の使い勝手を検討して、建具の仕様を変更することもあります。
建具職の中村耕木工所の中村圭一さん(写真手前)と打合せを行いました。

このようにして仕上がる建具は、住まい手が日常に眺め、目的をもって動かすものなので、その見映えや作動の感触は、暮らしを楽しくするために、とても重要な部位だと思います。これからは建具についての知識を深め、より良い建具の設計ができるように努めていきたいと思います。
最後までお読みいただき、ありがとうございました。
鈴木康之



-1-120x120.png)