エムズ日記をお読みの皆さん、こんにちは!春本番で満開の桜を楽しまれているでしょうか。今回のエムズ日記は香川県丸亀市の丸福町家で暮らしている非常勤スタッフの鈴木が担当いたします。
丸亀城の夜桜です。

丸福町家は祖母から受け継いだ築98年になる町家で、耐震、温熱などの性能向上改修を行い、昨年2月末から暮らし始めました。
今回は丸福町家に薪ストーブを設置することになった経緯や、この冬使ってみた感想などをお話しようと思います。
(丸福町家の写真はこちらの作品事例のページをご覧ください。ページの一番下の「Report」より、改修前の詳細調査から工事完成後の様子まで、シリーズでお読みいただけます)
丸福町家の改修の間取り設計は2023年の秋から始めましたが、当初から薪ストーブの設置を希望していたため、ファーストプランには玄関土間に薪ストーブが描かれています。

しかしながら、私は当時薪ストーブについての知識はほとんど無く、ただ漠然と薪ストーブから炎が見える生活に憧れていたような状況でした。
間取り設計が具体的に進み、本当に薪ストーブの設置が可能なのか、設計上の注意点などを確認するため、高松市にある薪ストーブの販売、施工をされている『薪おじさん』のショールームを訪ねました。
ショールームでは現物の薪ストーブをいくつか見せていただき、設置スペースの床、壁、天井には防火対策の設計が必要となることを伺いました。そこで私の家にも設置が可能なこと、適切な暖房能力の比較的小さな薪ストーブがあることがわかり、設置に向けての気持ちが高まりました。
一方で、私の家は丸亀市の市街地にあり、周りには戸建て住宅や高層マンションが建ち並んでいるため、煙突からでる煙や臭いによって近隣に迷惑をかけないか、という心配が膨らみました。
その心配に対処するためショールームで、市街地に薪ストーブを設置された住宅を数棟教えてもらい、それらの住宅の外観と近隣の状況を見て廻りました。その結果、マンションの建つ住宅地でも、薪ストーブを設置されている事例を確認し、少し安心しました。
また、乾燥した薪で、正しい手順で薪ストーブを燃やせば、煙の発生も抑えられるので、住まい手さんの使い方次第です、とアドバイスももらいました。
このような経緯を経て、薪ストーブの設置を決めました。
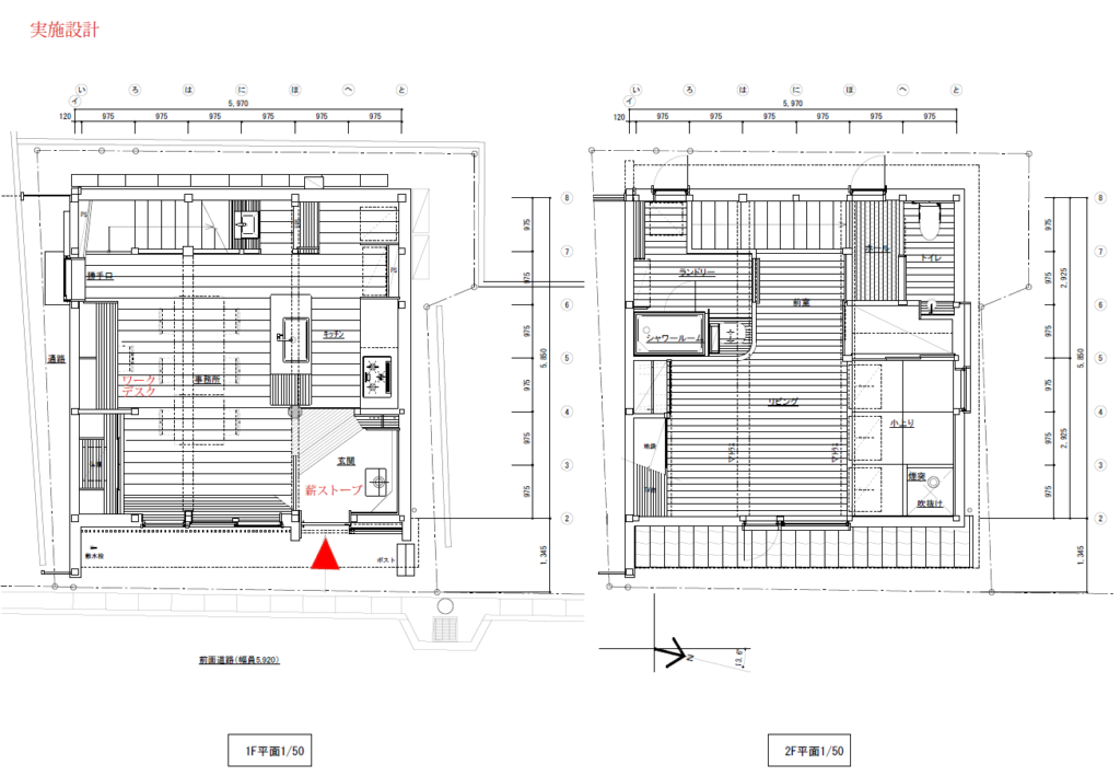
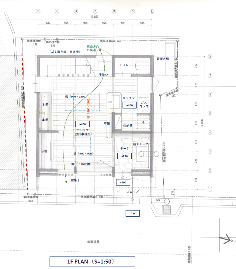
下図は実施設計の図面です

薪ストーブは玄関土間に設置しました。煙突を通すため2階の小上りに吹抜けを設けました。1階平面左側の通路には屋根があるので薪置き場にしています。



ここからは、この冬に薪ストーブを使用してみた感想です。昨年末から今年の1月14日までは、エアコンで暖房を行い、1月15日から薪ストーブの使用を開始して、双方の比較を行いました。
1月15日に薪ストーブの火入れ式を行いました。薪は『薪おじさん』から、乾燥した広葉樹のくぬぎの薪を100㎏9,000円で購入しました。100㎏の薪の量はミカン箱、3ケース程度ありましたが、消費するペースが想像していた以上に速く、一冬で使い切りました。

火入れは朝9頃に焚きつけ用の針葉樹の細い薪で行います。火が起こり炉内の温度が上がって来て薪ストーブの天板の表面が100℃を超える位になると、煙突の内部も温められて空気を上に吸上げるドラフト現象が発生します。この時には煙突からゴーゴーと空気を吸上げる音が聞こえてきます。順調に焚き付け用の薪が燃えて、炎の勢いが増し薪ストーブの天板表面温度が150℃を超えた辺りから、太い広葉樹の薪をくべていきます。そうすると炉内の炎が安定してきて、薪ストーブの天板温度が200℃を超えてきますので、給気口を絞って炉内へ入る空気の量を調節して、薪の燃焼時間が長くなるようにします。
薪ストーブの天板温度は丸型の温度計で確認します。この温度から炉内の燃焼状態を判断します

そのようにして、太い薪が燃え尽きて、おき床(炭火)になって来た時に、次の薪をくべます。この時は炉内温度が充分に高温になっているので、前の薪が炭火になっていても、自然に新しい薪が勢いよく燃え始めます。
そして、午後7時頃からは新しい薪はくべずにいると、炉内は自然に鎮火していきますが、翌朝まで室内は余熱で1、2階とも穏やかに暖かく快適に過ごせ、就寝することが出来ました。終日1、2階で温度差がほとんど無く、1階のワークデスクで仕事をしているときも気流を感じることはありませんでした。一方、エアコンで暖房していた時には、1階のみエアコンをつけると暖気が吹抜けから2階に上がり、2階の冷気が階段から1階へ降りてきて、冷たい気流を感じました。
下のグラフは、3月6日の屋外の気温と薪ストーブを使用した屋内の温度変化を1時間毎に記録したものです。

薪ストーブは朝9時頃火を入れて夜7時以降に自然鎮火しますが、室温は18℃から22℃の範囲でほぼ一定で、1、2階の温度差が無いことが分かります。屋外の気温は明け方の4時から7時頃は6℃以下にまで下がりますが、室内は前日の薪ストーブによる空気の余熱で、18℃程までしか下がりません。
煙突を上に延ばすために設けた吹抜けです。この吹抜けによって温められた空気が2階へ上がります。

エアコンで暖房をした1月請求分(12月8日~1月9日)の電気代は11,300円で、消費電力は347KWhでした。薪ストーブで暖房を行った2月請求分(1月10日~2月6日)の電気代は5,363円で、消費電力は211KWhでした。電気代の比較には薪のコストを加算しなければなりませんが、電気の使用量は薪ストーブにすることで136KWh減らすことが出来ました。
薪ストーブは薪を燃やす時にCO2が発生しますが、その量は木が成長過程で吸収したCO2とほぼ同量で、カーボンニュートラルとして扱うことが出来るそうです。運送時のCO2の発生を抑えるために、薪の調達は地産地消となるように配慮することで、地元の林業の持続にも貢献できるように思います。
薪ストーブを使っている時に外に出て煙突を確認すると、薄い色の煙が若干見えましたが、近隣からの苦情をいただくことはありませんでした。

薪ストーブは、乾燥した薪の調達や、毎朝の薪ストーブの清掃、火起こし、薪をくべるなどの作業が必要になりますが、その作業は生活していることの張り合いになっていたと感じます。そしてエアコンとは違う、穏やかな快適な暖かさが建物内に均一に得られることが分かり、設置してよかったなぁ、と思っています。また次の冬までには薪ストーブのメンテナンス(清掃)を学び、煙や臭いが発生を抑えた薪ストーブを維持していこうと思います。
最後までお読みいただき、ありがとうございました。
鈴木康之

-1-120x120.png)

